Ref.
Search
Property Type
In
Location
Rooms
Bathrooms
Features
Price

Apartment for sale on Copèrnic street (ref.2450)

 100 m2 |  14 m2 |  2 |  1 |
sale: 485,000 €
Ref. 2450 |  100 m2 |  14 m2 |  2 |  1 |
sale: 485,000 €

Apartment for sale on Copèrnic street

Flat for sale in Barcelona (Sarrià - Sant Gervasi)

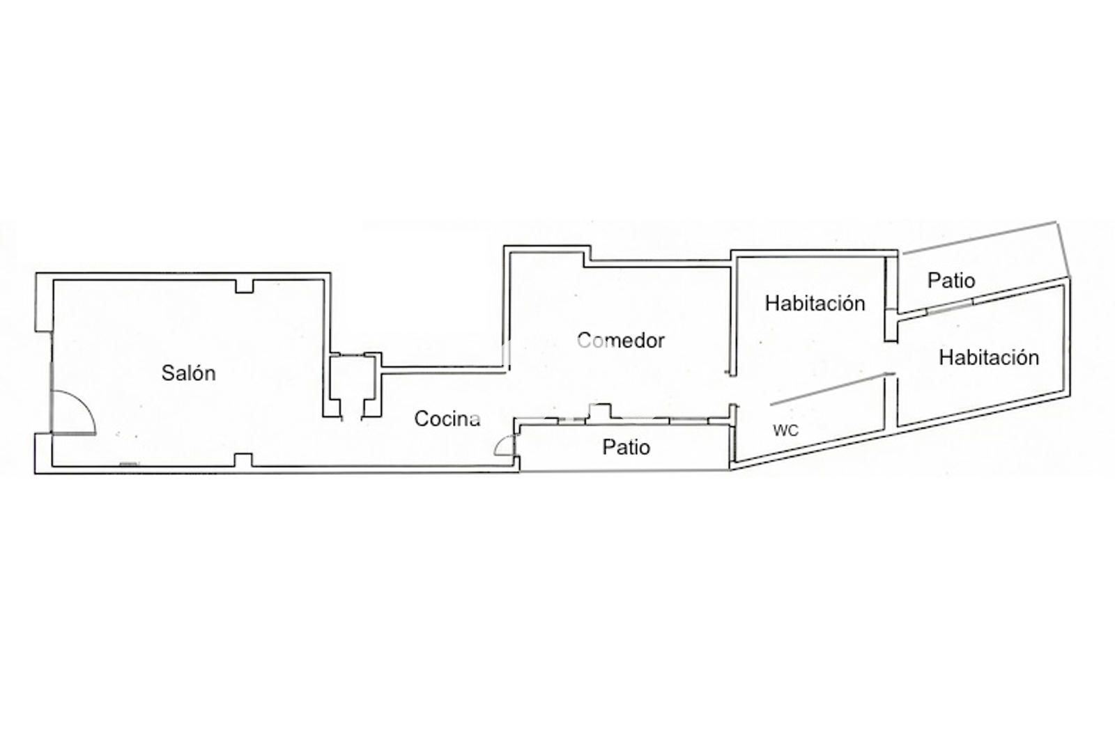
We present a home with character, completely exterior and tranquil, a unique opportunity combining the spaciousness of a family home with the charm of traditional architecture, an unbeatable location, and a touch of boldness.

The property's layout is exceptionally fluid and functional. The entrance, directly from the street, leads to a spacious 28 m² living room that captures natural light thanks to a wide entrance door and large windows. The space breaks with stereotypes, showing from the first moment that we are looking at a different, characterful, and original property. From the living room, you access the fully equipped kitchen, which in turn connects to a separate 20 m² dining room, ideal for family gatherings or large parties with friends.

The sleeping area comprises two comfortable bedrooms and a full bathroom, creating an intimate space separate from the social area. One of the home's greatest attractions is its two exterior patios, totaling 14 m². These spaces, strategically located next to the kitchen and bedrooms, provide ventilation and natural light throughout the home, allowing you to enjoy a morning coffee, relax with a book, or tend to some plants.

However, the defining feature of this apartment is its spectacular 4.5-meter ceiling height, crowned by Catalan-style vaulted ceilings. This quality creates a rare and spacious and elegant feel, free of architectural barriers and full of presence. Furthermore, this height offers the possibility of adding a mezzanine or loft, creating a double-height space and multiplying the usable square footage wherever desired. The apartment also features air conditioning to ensure maximum comfort year-round.

Located on the ground floor with direct street access, the apartment is situated in a prime location. The neighborhood is a perfect blend of residential tranquility and urban convenience. Within walking distance, you'll find everything you need: from local supermarkets and traditional shops to cafes with terraces and charming restaurants, with a strong emphasis on local residents and businesses. The connection to the rest of the city is excellent, with city bus stops and metro and train stations within easy walking distance, facilitating travel both within the district and to the city center or other points of interest.

In short, this property offers a unique space full of character, in a well-established location with all amenities within easy reach. An opportunity for those seeking a home with personality, natural light, and a smart layout.

Año de construcción 1955
Constructed area 100 m2
Usable floor space 88 m2
Repercusión m² venta 4,850
Terrace 14 m2
Bedrooms 2
Bathrooms 1
Furnished Kitchen
Heating
Exterior carpentry
Orientation Este
Condition
Floor type
Air conditioning
Energy Rating In process
Electricity
Water
Disabled access

For more information about this property, please fill out the form:

Partners
Contactar
Barcelona
c/Balmes 199, 1ºA, 08006

Girona
c/Nord 3, Baixos, 17001

 932 374 301
 info@turo.es