Ref
Busco
Tipo
En
Zona
Habitaciones
Baños
Características
Precio

Piso en venta en Barcelona (ref.2437)

 82 m2 |  3 |  1 |
venta: 440.000 €
Ref. 2437 |  82 m2 |  3 |  1 |
venta: 440.000 €

Piso en venta en Barcelona

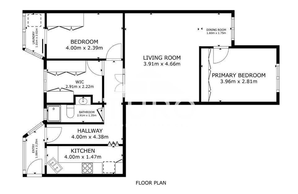
Si buscas un hogar definitivo en el Eixample, donde la luz y la tranquilidad sean protagonistas, este piso puede ser el tuyo. Situado en Calle Aldana, en una finca con ascensor, se trata de una vivienda alta y exterior a amplio patio de manzana, lo que garantiza mucha luz natural y un ambiente muy silencioso. ? Distribución cómoda y equilibrada: Salón comedor con dos zonas diferenciadas (estar y comedor) Tres dormitorios: uno doble y dos individuales Cocina independiente Baño completo La vivienda se presenta en excelente estado de conservación, recién pintada, con suelos y puertas nuevos, y una imagen actual y acogedora que invita a entrar a vivir desde el primer día. Dispone además de altillo, preinstalación para calefacción y split de aire acondicionado con bomba de calor en el salón comedor, así como ventilación cruzada que garantiza frescor y confort durante todo el año.
Año de construcción 1960
Construidos 82 m2
Útiles 71 m2
Repercusión m² venta 5.366
Dormitorios 3
Baños 1
Estado Buena
Ascensor
La dirección del inmueble es aproximada.

Si desea más información sobre esta propiedad, por favor, rellene el cuestionario:

Partners
Contactar
Barcelona
c/Balmes 199, 1ºA, 08006

Girona
c/Nord 3, Baixos, 17001

 932 374 301
 info@turo.es